Revit
אדריכלות
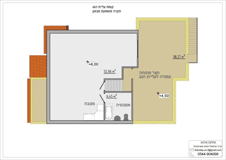
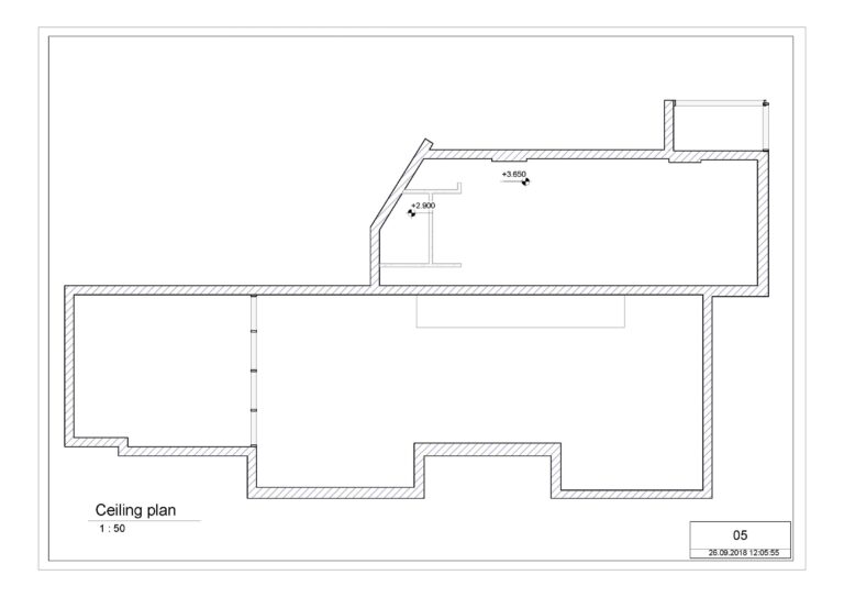
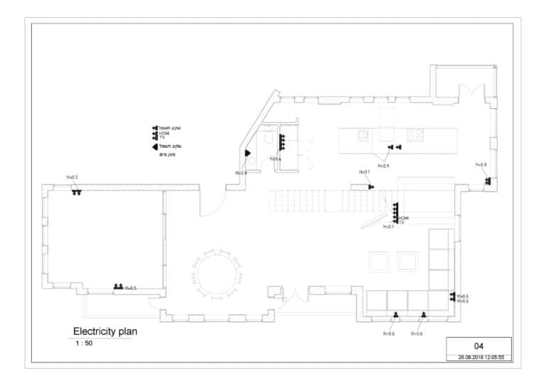
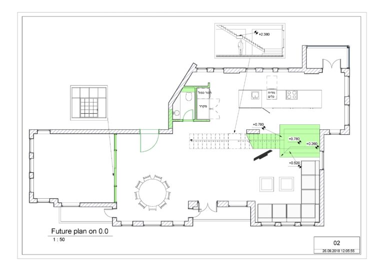
מידול בית/דירה/מבנה בתלת מימד מאפשר לך להבין טוב יותר את התוצאה הסופית מאשר שרטוטים רגילים. ניתן ממש לטייל בתוך הבית בסיור וירטואלי. המודל כולל את כל הריהוט. תכניות עבודה – הריסה, בנייה, חשמל, אינסטלציה, מיזוג, פריסות ריצוף וכו' ניתן לקבל ישירות מתוך המודל התלת ממדי ללא ביצוע שרטוטים רגילים באוטוקד.















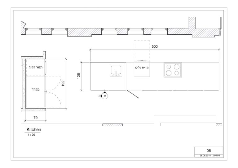
המודל כולל הדמייה ותכניות ייצור של מטבח, פריסות ריצוף קירות ורצפה. במבנים רבי קומות אנחנו מבצעים תאום מערכות בין כל היועצים. לצורך זה מבוצע מודל מלא הכולל את כל המערכות ואת כל הציוד של המבנה. כולל גם כיבוי אש, חישה ובקרה וכו'.











תכניות עבודה מופקות ישירות מהמודל התלת ממדי שבנינו. עיבוד סופי של השרטוטים יכול להתבצע באוטוקד לצורך חסכון בזמן. אם הלקוח העביר סקיצות סופיות וברורות, ואין צורך לחשוב לעצב את המרחב, עבודה באוטוקד ללא בניית מודל תלת מימדי היא חסכונית יותר בזמן וכסף.
Notice: Undefined index: id in /home/sirtutco/public_html/wp-content/plugins/elementor/includes/widgets/image-carousel.php on line 912
Notice: Undefined index: id in /home/sirtutco/public_html/wp-content/plugins/elementor/includes/widgets/image-carousel.php on line 912
Notice: Undefined index: id in /home/sirtutco/public_html/wp-content/plugins/elementor/includes/widgets/image-carousel.php on line 912
Notice: Undefined index: id in /home/sirtutco/public_html/wp-content/plugins/elementor/includes/widgets/image-carousel.php on line 912
Notice: Undefined index: id in /home/sirtutco/public_html/wp-content/plugins/elementor/includes/widgets/image-carousel.php on line 912
Notice: Undefined index: id in /home/sirtutco/public_html/wp-content/plugins/elementor/includes/widgets/image-carousel.php on line 912
Notice: Undefined index: id in /home/sirtutco/public_html/wp-content/plugins/elementor/includes/widgets/image-carousel.php on line 912
Notice: Undefined index: id in /home/sirtutco/public_html/wp-content/plugins/elementor/includes/widgets/image-carousel.php on line 912
Notice: Undefined index: id in /home/sirtutco/public_html/wp-content/plugins/elementor/includes/widgets/image-carousel.php on line 912
Notice: Undefined index: id in /home/sirtutco/public_html/wp-content/plugins/elementor/includes/widgets/image-carousel.php on line 912
Notice: Undefined index: id in /home/sirtutco/public_html/wp-content/plugins/elementor/includes/widgets/image-carousel.php on line 912
Notice: Undefined index: id in /home/sirtutco/public_html/wp-content/plugins/elementor/includes/widgets/image-carousel.php on line 912
Notice: Undefined index: id in /home/sirtutco/public_html/wp-content/plugins/elementor/includes/widgets/image-carousel.php on line 912
Notice: Undefined index: id in /home/sirtutco/public_html/wp-content/plugins/elementor/includes/widgets/image-carousel.php on line 912
Notice: Undefined index: id in /home/sirtutco/public_html/wp-content/plugins/elementor/includes/widgets/image-carousel.php on line 912
Notice: Undefined index: id in /home/sirtutco/public_html/wp-content/plugins/elementor/includes/widgets/image-carousel.php on line 912
Notice: Undefined index: id in /home/sirtutco/public_html/wp-content/plugins/elementor/includes/widgets/image-carousel.php on line 912
Notice: Undefined index: id in /home/sirtutco/public_html/wp-content/plugins/elementor/includes/widgets/image-carousel.php on line 912
Notice: Undefined index: id in /home/sirtutco/public_html/wp-content/plugins/elementor/includes/widgets/image-carousel.php on line 912
Notice: Undefined index: id in /home/sirtutco/public_html/wp-content/plugins/elementor/includes/widgets/image-carousel.php on line 912
Notice: Undefined index: id in /home/sirtutco/public_html/wp-content/plugins/elementor/includes/widgets/image-carousel.php on line 912
Notice: Undefined index: id in /home/sirtutco/public_html/wp-content/plugins/elementor/includes/widgets/image-carousel.php on line 912
Notice: Undefined index: id in /home/sirtutco/public_html/wp-content/plugins/elementor/includes/widgets/image-carousel.php on line 912
Notice: Undefined index: id in /home/sirtutco/public_html/wp-content/plugins/elementor/includes/widgets/image-carousel.php on line 912
Notice: Undefined index: id in /home/sirtutco/public_html/wp-content/plugins/elementor/includes/widgets/image-carousel.php on line 912
Notice: Undefined index: id in /home/sirtutco/public_html/wp-content/plugins/elementor/includes/widgets/image-carousel.php on line 912
Notice: Undefined index: id in /home/sirtutco/public_html/wp-content/plugins/elementor/includes/widgets/image-carousel.php on line 912





